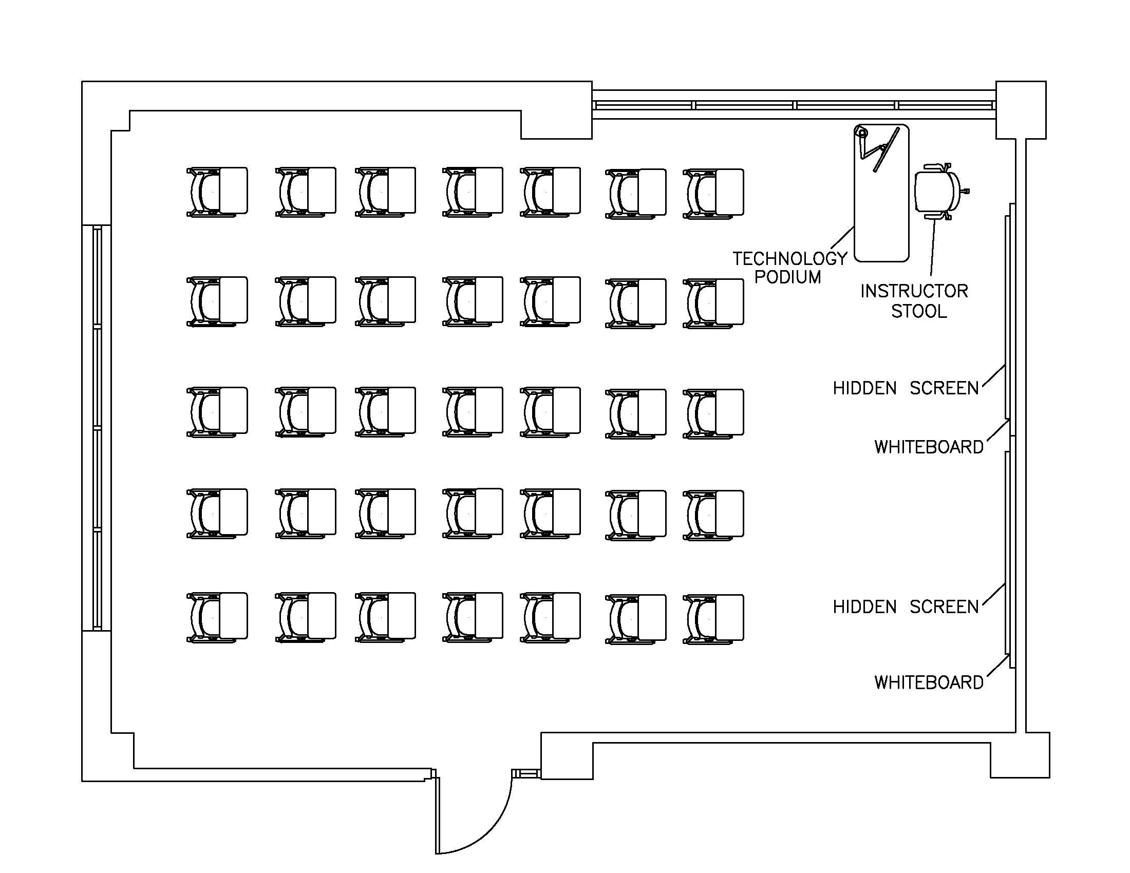
Toggle high contrast Kuhlin Center BGSU Planning, Construction, and Campus Operations Maps for Grid Classrooms and Computer Labs Kuhlin Center Kuhlin Center 208 Room Capacity: 35 Technology in Kuhlin Center 208 Maps for Grid Classrooms and Computer Labs Updated: 03/20/2026 04:35PM